Re・Life不動産株式会社【姫路市の不動産販売】

戸建

姫路市勝原区山戸戸建

2,480万円
8LDK
住所
姫路市勝原区山戸212番1
交通
JR山陽本線「はりま勝原」駅 徒歩15分
2,480万円
8LDK
住所
姫路市勝原区山戸212番1
交通
JR山陽本線「はりま勝原」駅 徒歩15分
  • 外観です。
  • 外観です。
  • 外観です。
  • 門です。
  • 玄関です。
  • 玄関ホールです。
  • LDKです。
  • キッチンです。
  • 1階洋室約10.0帖です。
  • 1階和室約8.0帖です。
  • 洗面所です。
  • 浴室です。
  • 1階トイレです。
  • 2階洋室約7.5帖です。
  • 2階東側洋室約6.0帖です。
  • JRはりま勝原駅まで約1200m・徒歩15分です。
  • 勝原小学校まで約720m・徒歩9分です。
  • 主婦の店宮田店まで約670m・徒歩9分です。
  • イオンモール姫路大津まで約700m・徒歩9分です。

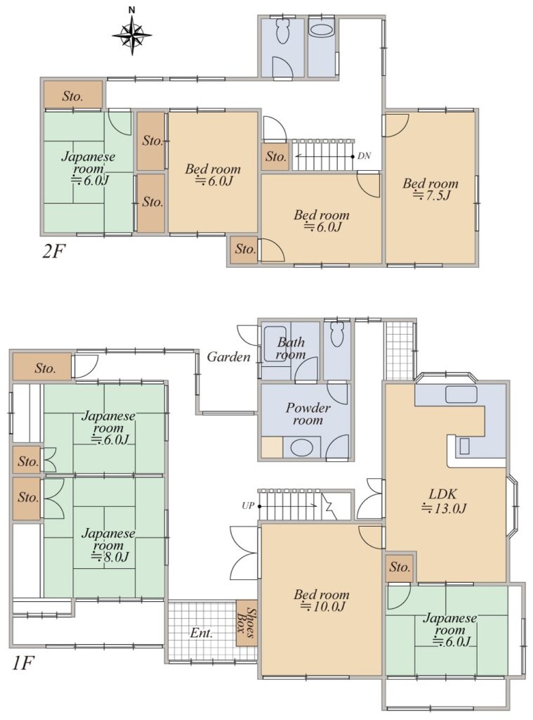
FLOOR PLAN

※クリックで画像を拡大できます。

セールスPOINT!

この度は、『姫路市勝原区山戸戸建』のページをご覧いただきまして、誠にありがとうございます。

本物件は、JRはりま勝原駅まで徒歩15分とお出かけ等に便利な立地です。
西側道路および南側通路に面した角地につき、日当り良好です。また、カースペースは縦列2台分あります。
土地面積約120.44坪のゆったりとした敷地に、建物面積約70.94坪、間取り8LDKの邸宅があります。

勝原小学校まで約720m・徒歩9分とご通学に便利です。
また、イオンモール姫路大津まで約700m・徒歩9分、主婦の店宮田店まで約670m・徒歩9分などお買い物にも便利です。

現況空家ですので、ご内覧可能です。
お問い合わせお待ちしております。

物件詳細情報

物件名 姫路市勝原区山戸戸建 住所 姫路市勝原区山戸212番1
価格 2,480万円 交通 JR山陽本線「はりま勝原」駅 徒歩15分
土地権利 所有権 構造 木造瓦葺2階建
土地面積 登記簿 398.18㎡(120.44坪) 築年月 1990年5月(平成2年5月)
地目 宅地 建物面積 234.54㎡(70.94坪)
接道状況 西側 公道 約4.0m~約5.0m 間取り 8LDK
用途地域 第一種中高層住居専用地域 間取り詳細 1階:和8.0・和6.0・和6.0・洋10.0・LDK13.0
2階:和6.0・洋7.5・洋6.0・洋6.0
建ぺい率 60% 駐車場 カースペース
容積率 150% 上水道 公営水道
現況 空家 下水道 公共下水
引渡 相談 ガス
小学校区 勝原小学校 中学校区 朝日中学校
設備 トイレ2ヶ所、シャワー付洗面化粧台、3口以上コンロ、IHクッキングヒータ、システムキッチン、モニタ付インターホン 備考 ※景観法 ※がけ条例 ※建築基準法第22条区域
※都市再生特別措置法 ※埋蔵文化財包蔵地内(南山戸遺跡)
※高度地区(第一種)高さの最高限度12m
※宅地造成及び特定盛土等規制法
※契約不適合責任免責
物件名 姫路市勝原区山戸戸建
住所 姫路市勝原区山戸212番1
価格 2,480万円
交通 JR山陽本線「はりま勝原」駅 徒歩15分
土地権利 所有権
構造 木造瓦葺2階建
土地面積 登記簿 398.18㎡(120.44坪)
築年月 1990年5月(平成2年5月)
地目 宅地
建物面積 234.54㎡(70.94坪)
接道状況 西側 公道 約4.0m~約5.0m
間取り 8LDK
用途地域 第一種中高層住居専用地域
間取り詳細 1階:和8.0・和6.0・和6.0・洋10.0・LDK13.0
2階:和6.0・洋7.5・洋6.0・洋6.0
建ぺい率 60%
駐車場 カースペース
容積率 150%
上水道 公営水道
現況 空家
下水道 公共下水
引渡 相談
ガス
小学校区 勝原小学校
中学校区 朝日中学校
設備 トイレ2ヶ所、シャワー付洗面化粧台、3口以上コンロ、IHクッキングヒータ、システムキッチン、モニタ付インターホン
備考 ※景観法 ※がけ条例 ※建築基準法第22条区域
※都市再生特別措置法 ※埋蔵文化財包蔵地内(南山戸遺跡)
※高度地区(第一種)高さの最高限度12m
※宅地造成及び特定盛土等規制法
※契約不適合責任免責

アクセスマップ

この物件へのお問い合わせ

お電話でお問い合わせ

受付時間 9:30‒18:00 
定休日 毎週水曜日

メールでお問い合わせ

下記フォームより必要事項を記入いただき 送信 ボタンを押してください。
は必須項目になりますので必ず入力してください。
お問い合わせの際は「個人情報保護方針」をお読みになり、同意のうえお問い合わせください。
回答に時間がかかる場合がございます。お急ぎの方はお電話にてお問い合わせください。

    お問い合わせ物件

    種類

    お名前

    フリガナ

    メールアドレス

    確認用メールアドレス

    電話番号

    郵便番号

    ご住所

    希望連絡方法

    希望資料送付方法

    ご質問・ご連絡事項

    上記内容でよろしければ、送信するをクリックして下さい。

    Copyright ⓒ Re・Life不動産 CO., LTD.

    サロンリライフバナー